馆园融合项目1-03与1-05铺、1-07铺、 1-11铺招商公告
发布时间:2026-01-23 14:34 打印文件

为有效推进公司资产运营,岳麓山旅游文化开发有限公司(以下简称岳麓山公司)现对馆园融合项目1-03与1-05铺、1-07铺、1-11铺进行公开招商,欢迎符合要求的单位报名参与。

一、招商单位:岳麓山旅游文化开发有限公司

二、项目基本情况

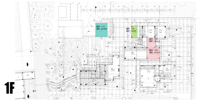
1.项目名称:馆园融合项目1-03与1-05铺、1-07铺、1-11铺;

2.项目概述:馆园融合项目位于长沙市开福区东风路湖南省博物馆与烈士公园交汇处,目前正在建设中,预计4月10日开业。工程物业条件及限制性要求以现场交付为准,物业状况及周边情况由承租人自行现场勘察。本次招商共计3个项目,其中1-07铺采取公开竞价评审,参选单位的经营品牌须为知名品牌便利店,其品牌门店数量须不少于100家。1-03、1-05铺和1-11铺采取综合评分法评审。具体情况如下:

image.png

3.项目区位示意图

image.png

image.png

4.取得承租资格单位须严格按照招商业态定位使用物业,须符合相关安全、环保及消防等方面的要求。禁止生产性产业、有环保风险产业,禁止经营重餐、重油、重烟、重噪型业态,禁止使用明火。

5.物业交付条件:现状交付,涉及经营相关的政策性审批由租户自行办理并承担一切费用。

6.参选单位提报的业态及品牌须符合招商文件要求,其业态描述应与招商文件中的业态定位表述完全一致,并遵循“一铺一业态”原则,即参选单位仅限申报一个业态。

三、参选单位要求

(1)在中华人民共和国境内注册的企业法人。

(2)企业需提供营业执照、税务登记证、组织机构代码证三证(三证合一)。

(3)企业在国家企业信用信息公示系统中未列入经营异常、严重违法、失信企业名单(黑名单)、限制高消费名单,需提供企业在国家企业信用信息公示系统(http://www.gsxt.gov.cn/index.html)上查询的“列入严重违法失信企业名单(黑名单)信息”网页截图并加盖公章。

(4)企业营业执照的经营范围,须包含其所报名铺面对应业态的相关业务。

(5)不接受联合体参与招商,包括但不限于通过关联企业、代持协议等变相实现联合经营的情形。

(6)遵守国家法律法规和岳麓山公司及相关管理机构对于物业经营管理的相关规定。

(7)企业本体与岳麓山公司不存在经济纠纷、法律诉讼等情况。

(8)参选单位及相关联单位(存在控股、管理关系,或同一法定代表人、实际控制人的企业)近三年(自提交申请文件截止日前三年,下同)内在与长沙城市发展集团有限公司及其下属公司的经营活动中没有重大失信行为(包括但不限于拒不履行相关义务、恶意拖欠相关款项、招商中选后放弃承租资格等)。

(9)法定代表人或股东为同一人的不同单位,不得同时参与本次招商,仅允许其中一家参加。

(10)参选单位提交的授权代表在本次招商活动中必须具有唯一性,即同一授权代表不得同时代表两家或两家以上的参选单位。

(11)1-07铺业态定位为便利店,参选单位的经营品牌须为知名品牌便利店,其品牌门店数量须不少于100家,参选单位须同时提交相关品牌授权和门店数量证明材料:品牌授权证明材料包括但不限于品牌授权证明书或授权合同等,门店数量证明材料包括但不限于品牌方披露之年报、财报、官方证明材料或美团等线上门店佐证。所有证明材料如非原件,均需参选单位及品牌授权方(如有)盖章确认。

四、招商商务条件

image.png

五、招商方式

本次招商共计3个项目,其中1-07铺采取现场竞价评审,参选单位的经营品牌须为知名品牌便利店,。如招商当天符合条件的参选单位在两家或以上,经现场二轮竞价,有效报价最高的单位为取得承租资格单位。如单个项目招商当天符合条件的参选单位只有1家,则由招商评审小组按照单一性谈判方式确定,谈判监督人员由公司纪检人员担任,最终成交的商务条件不低于公司招商基准条件与参选单位在现场提交的申请文件中符合招商要求的商务条件。

1-03、1-05铺和1-11铺采取按单项目综合评分法进行评审,其中价格部分60分,经营方案部分30分,公司实力部分10分,综合评分得分最高者且得分80分(含)以上为取得承租资格单位。如单个项目取得承租资格单位放弃的,则顺位递补(80分(含)以上)第二名为取得承租资格单位,若第二名放弃,则顺位递补(80分(含)以上)第三名为取得承租资格单位,若第三名仍主动放弃承租资格,则本次资产招商取消,择日另进行公开招商。如单个项目招商当天符合条件的参选单位只有1家的,由招商评审小组按照单一性谈判方式确定。最终成交的商务条件不低于公司招商基准条件与参选单位在现场提交的申请文件中符合招商要求的商务条件。

招商集中报名公示期内无意向承租人响应的,招商公示有效期延长至90天。期间采用先来后到方式确定意向承租人,按招商小组商务谈判流程确定承租人。

90天招商公示期过后无意向承租人响应的,终止本次招商,按公开交易流程重新开展招商。

六、文件的获取与递交

1.参选单位交纳招商保证金后,凭交款凭证至岳麓山公司处(长沙市岳麓区先导路湘江时代商务广场A1座17层  李女士 13787873353)领取招商文件。

2.申请文件递交的时间及评审时间为北京时间2026年1月29日15时30分,地点为城发集团招采交易平台(湖南省长沙市岳麓区枫林三路西中心T2栋25楼)。请参选单位按格式及装订要求递交申请文件。温馨提示:早高峰期电梯紧张,建议至少提前1小时到达西中心T2栋,避免因迟到导致申请文件无法递交,乘坐1-6号电梯至25层即可(直接按25楼,无需刷卡)。

3.逾期送达的、未送达指定地点的、未按要求密封的、未按要求加写标注的申请文件,一律不予受理。

七、招商保证金

1.递送申请文件前,参选单位须交付招商保证金,否则其参加招商将被拒绝(★)。

2.招商保证金需在北京时间2026年1月28日17时前到达专用账户(以银行到账日期时间为准)。参选单位在确认取得承租资格后,招商保证金直接转为合同履约保证金。

3.招商保证金交纳方式:银行转账,以参选单位自身的名义足额交纳至如下专用账户:

户 名:岳麓山旅游文化开发有限公司

开户银行:长沙银行先导区支行

账 号:8001 1150 6203 010

交纳保证金请注明:馆园融合项目xx铺招商保证金(参选单位名称)

5.参选单位未按要求交纳招商保证金的,作无效参加招商处理,其可能造成的损失由参选单位自行承担。

6.如参选单位取得承租资格,其交纳的招商保证金可在双方签订正式合同后直接转为履约保证金;如参选单位未取得承租资格,岳麓山公司在与取得承租资格单位签订合同后15个工作日内无息原路径退还招商保证金。但发生下列任何情况时,岳麓山公司有权不予退还招商保证金:

(1)参选单位在评审开始后单方面撤回或修改申请文件的。

(2)参选单位在取得承租资格后,未在规定期限内签订合同的。

(3)参选单位主动放弃承租资格的。

(4)参选单位采用不正当的手段骗取承租资格。

八、其他要求

为满足相关的管理要求,取得承租资格单位在符合一般性要求外,须遵守以下规范的约束:

(1)开放性。所有经营场所须具备对外开放性;所有经营场所的卫生间等设施均对市民免费开放。

(2)行政审批。合同签订后,凡经营涉及的所有行政许可和报批(包括但不限于消防、安全许可、专项资质认证、广告等)由取得承租资格的单位自行负责。

(3)不得有任何形式的分租、转租、承包,须由参选单位自行负责经营管理。

(4)资产移交。按现状移交,取得承租资格单位不得对建筑五个立面、主体结构进行变更或搭盖。

(5)装修管理。为推动项目有序运行,保障商户运营品质与高效履约,取得承租资格单位的装修方案(含店招及内装修方案)须呈报岳麓山公司及相关管理部门批准,相关管理和退出条款将在合同中进行明确;装修完毕须通过住建、消防等相关部门综合验收合格后方可使用。

(6)如取得承租资格单位有增加水电负荷需求,须符合岳麓山公司及相关管理部门的要求,并自行负责改造及承担费用。

九、招商工作程序

(详情见招商文件)

十、招商信息发布媒介

1.长沙城市发展集团招采交易平台

2.长沙城市发展集团官网

3.“城发租赁”小程序

4.岳麓山旅游文化开发有限公司微信公众号

十一、监管部门及联系方式

(一)招商单位:岳麓山旅游文化开发有限公司

地  址:长沙市岳麓区先导路湘江时代商务广场A1座17层

联系人:范先生  

电  话: 18674830576 

(二)监督联系部门

监督部门:长沙城市发展集团有限公司纪检监察室

电    话:0731-88797919

地    址:长沙市岳麓区先导路湘江时代商务广场A1座13A层

邮    箱:cscfjj@163.com