
一、招商单位:
长沙恒志房地产开发有限公司湘江豪生酒店分公司
项目介绍: 长沙湘江豪生酒店位于湘江西岸的湖南省金融中心—滨江新城,与文化地标—三馆一厅隔江相望。共有客房60间,床位数84个;西餐厅、中餐包厢及小型宴会厅,餐位总数124个。
二、招商区域描述:
(一)招商区域基本信息:
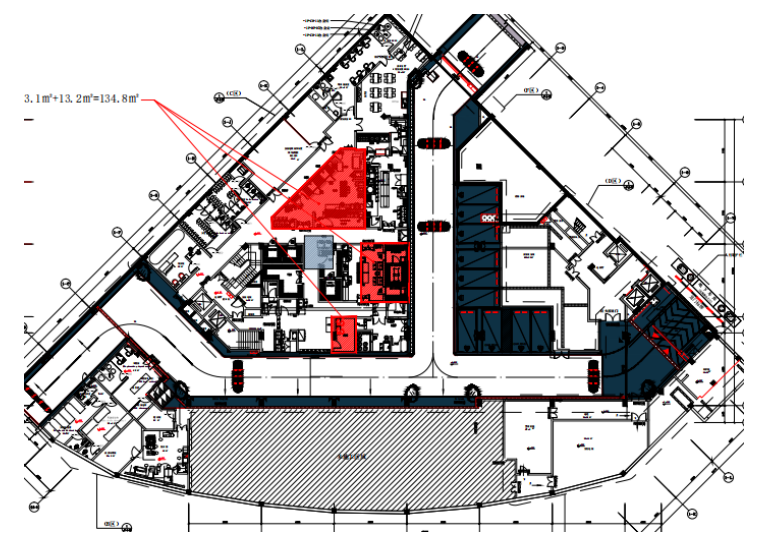
酒店建筑面积8132.2㎡,餐饮可租赁面积包括一楼、二楼及负一楼的准备工作间共1379.5平方米(不包含豪生厅、昆西厅),其中营业区域面积1244.7平方米,辅助区域面积134.8平方米。具体如下图所示:

(二)招商户型示意图:
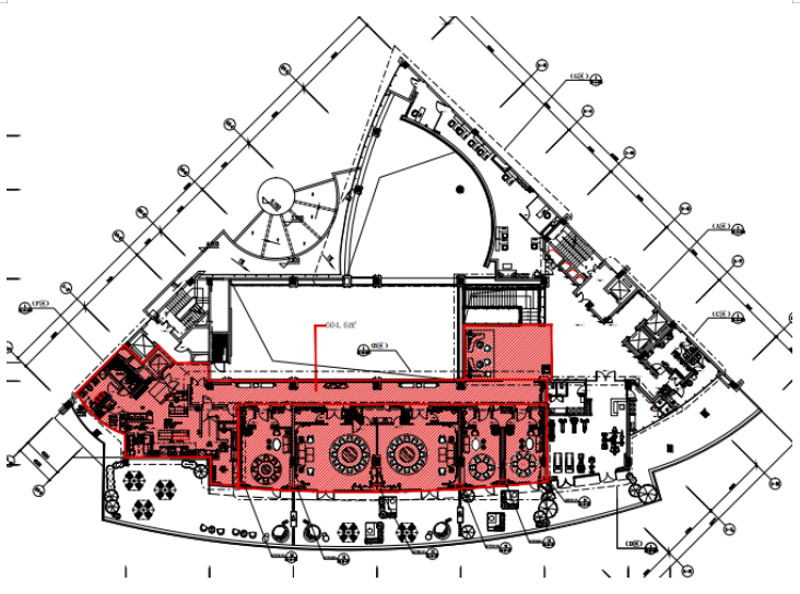
1、一楼(西餐厅、大堂吧、西厨房)红线区域范围
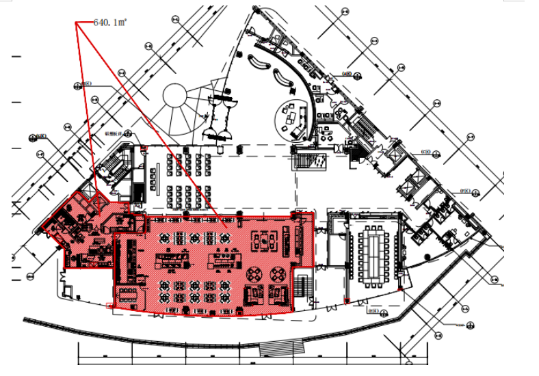
2、 二楼(中餐厅包厢、中厨房)红线区域范围
3、负一楼(西饼房、西厨房、操作间海鲜池)红线区域范围
三、招商简章
(一)招商对象:
具有十年以上高端餐饮经营经验,长沙市本地高端商务餐饮品牌;
(二)招商业种:餐饮;
(三)招商要求:
1、租赁方需合法经营,不得损害酒店利益及品牌形象。
业主方不对承租方经营风险负责;
2、配合酒店经营,按豪生酒店品牌标准提供早餐
3、配合业主方,保障相关商务接待工作的顺利开展;
4、承租方需按要求提供收银日报表及月度收入报表;酒
店拥有随时抽查收银机系统权限。
5、二次装修投入由承租方负责,租赁方经营业态和装修
方案需报业主方审批同意后方可执行。安全责任由承租方全权负责。
(四)租赁年限:10年。
四、招商联系方式:
(一)联系人:李女士 18608402325;
(二)联系地址:长沙市岳麓区滨江景观道168号长沙湘江豪生酒店。
五、招商公示期:
2022年11月5日起至2022年11月11日。
六、招商方式
招商信息发布后在公示期内报名响应的人选在2个或以上则采取集团招采交易平台(场所)公开招租、进场交易的方式确定承租方,如只有1个报名响应,则以商务谈判方式确定合作条件及承租方。
七、投诉联系方式:
1、联系部门:长沙城发恒伟置业有限公司产业协作部(酒店);
2、联系电话:0731-82909321;
3、联系地址:长沙市岳麓区先导路湘江时代A1座2层。
八、举报联系方式:
1、联系部门:长沙城市发展集团有限公司纪检监察室;
2、联系电话:0731-88797919;
3、联系地址:长沙市岳麓区先导路湘江时代A1座13A层。
长沙恒志房地产开发有限公司
长沙湘江豪生酒店分公司
2022年11月33日