长沙先导恒汇商业管理有限公司 凯德壹中心影院预招商公告
发布时间:2024-12-26 16:20 打印文件

一、招商单位:长沙先导恒汇商业管理有限公司

二、位置描述

项目介绍: 位于长沙市岳麓区茶子山东路112号凯德壹中心四楼,面积约4880

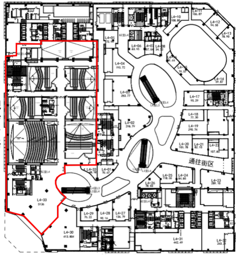
三、物业现状及区位示意图

image.png

image.png

image.pngimage.png

一、预招商简章

1.招商对象:有先进经营理念,良好经营实力和丰富经营经验的影院运营方;投标人、合同签署人、本项目营业执照法人为同一主体。同等条件下优先考虑购物中心影院经营方

2.招商业态:影院。

3.交付方式:现状交付,商户须自行负责办理开业所有的消防、经营许可等相关证照。整体租赁,不可分租或转租。

五、合作商务条件

1.租金报价:

image.png

2.租赁模式:2025年至2026年全含租金与阶梯年度净票房租金二者取高;2027年至2034年2月19日保底租金与年度净票房抽成租金二者取高; 

3.租赁年限:9年2个月19天;

4.租金缴纳方式:月付;

5.合同履约保证金:租赁合同最高年度三个月全含租金;

6.全含租金中物业管理费:40元//月。

六、意向洽谈

在预招商公示期内至长沙市岳麓区茶子山路112号凯德壹中心四楼商管办公室提交公司介绍及品牌资料,并就意向物业进行初步意向洽谈;

七、招商联系方式

1、联系人:谭女士 15173209075;

2、联系地址:长沙市岳麓区茶子山路112号凯德壹中心四楼商管办公室。

八、预招商公示及报名期

2024年12月24日起至2024年12月31日。

九、投诉联系方式

1、联系部门:长沙城市发展集团有限公司纪检监察室;

2、联系电话:0731-88797919;

3、联系地址:长沙市岳麓区先导路湘江时代A1座13A层。  

 

长沙先导恒汇商业管理有限公司

                              2024年12月24日